Sunday, December 21, 2008

New Panoramic Views of the Site


View of Corner of Calle Javilla & Calle Dr. Veve Intersection


View from Site looking North

Elevations - Colored Version


Latest Sections and Elevations

Saturday, December 20, 2008

Sunday, December 14, 2008

Building Sketches

These are some sketches where I have been studying volumes, textures and materials for the complex. The Concert Hall volume is built of a thick slab of cast-in-place concrete with a possible metal clad. The wrapping slab is meant to shield the southern sun exposure with some fenestrations, the last two sketches show some fenestration studies for it. From this volume there is a bridge connection to the upper plaza at the Porta Coeli Museum. There is a second wrapping slab that connects the Learning Center and Music Lounge volumes. The slab has similar characteristics to the Concert hall, except for the roof garden and light shaft. The overall building sets back from the street several feet allowing the sidewalk to be wider and more pedestrian friendly.





Sunday, December 7, 2008

More preliminary plans...


Massing Model V3- Floor Plates

For better understanding of my floor plan layout I decided to build this model with just the floor plates, no walls. It also help me compare the relationship of the building with its surroundings.










Thursday, December 4, 2008

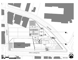
New Plans, Sections and Elevations

These are some updated Floor Plans, Sections and Elevations. Note that from the previous scheme the Concert Hall layout changed to a "horseshoe" type of seating allowing me to diminish the footprint stacking more seats with two levels of balconies. The idea behind this overall scheme is to have a continuous element that moves throughout the project serving as a roof, wall and floor. I'm still trying to figure out better ways to connect spaces throughout the complex.